
August 21, 2017
Fourteen months have passed since the Ebenezer rezoning was rejected by City Council on June 20, 2016. The vote was a watershed moment in Milton’s history. You might recall that so many re-zoning opponents showed up that a holding tank was created for the overflow—the first time in our City’s history. Ninety-nine opponents of the rezoning completed speaker cards—another record. In less than 4 weeks, an on-line petition espousing 9 principles of smart land use and good governance amazingly garnered nearly 1800 signatures and over 600 impassioned comments. The residents of Ebenezer Road unequivocally demonstrated nearly universal local opposition to the re-zoning. Citizens clearly expressed their opposition to reckless development and its ill-effects, and prevailed in the battle over the Ebenezer re-zoning.

Many of you know the story of the Ebenezer rezoning’s defeat; you were part of it. Thank you. However, there is a comforting epilogue to the Ebenezer rezoning that is mostly unknown to citizens. Specifically, the story since the rezoning validates the arguments made against the Ebenezer rezoning and, more generally, the arguments made against so-called “conservation” subdivisions.
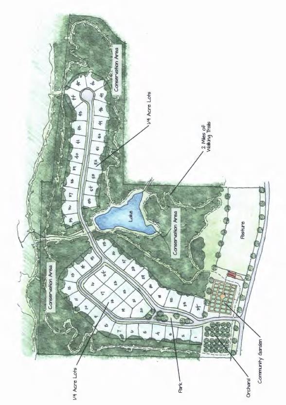
You might recall that rezoning proponents asserted that, with or without the rezoning, the same number of homes (55 in the original proposal and 48 in the final proposal) would be built on the 65-acre Ebenezer property. Well, that has turned out to be dramatically wrong. It is doubtful whether even 30 homes will eventually be built on the 65 acres. Brightwater Homes is currently developing a portion of the 65 acres It purchased the most attractive 38 acres and is building 21 homes on 1+acre lots. The remaining 27 acres of land are considerably less attractive for development, so likely will support just a few additional homes. So instead of the 55 homes in the original Brightwater Homes proposal, the Ebenezer Road property will likely support no more than 30 homes on the 65 acres. Much of the remaining un-built 27 acres could stay undeveloped (i.e., conserved) for many years to come. Delayed development is conservation! Following is Brightwater Homes’ original proposed “conservation” subdivision. Much of the “conserved” land is unbuildable or uneconomic to build; it also includes “non-green” elements, such as the community septic system. In retrospect it is clear that, with the denial of both the CSO and the Ebenezer rezoning, our community dodged a bullet.

So have “conservation” subdivision proponents admitted they were wrong? Believe or not, they have not. In fact, Mr. Kunz and others have doubled down on the notion of “conservation” subdivisions. Just last Monday night, Mr. Kunz again promoted conservation subdivisions in a Council working session, continuing to assert that the community is “divided” about “conservation” subdivisions. Of course, our post from 2 days ago showed where Mr. Kunz’s true allegiances lie . . . with developers, not citizens . . . and developers desperately want “conservation” subdivisions.
Now you know the rest of the story . . .
Tim Becker

August 20, 2017